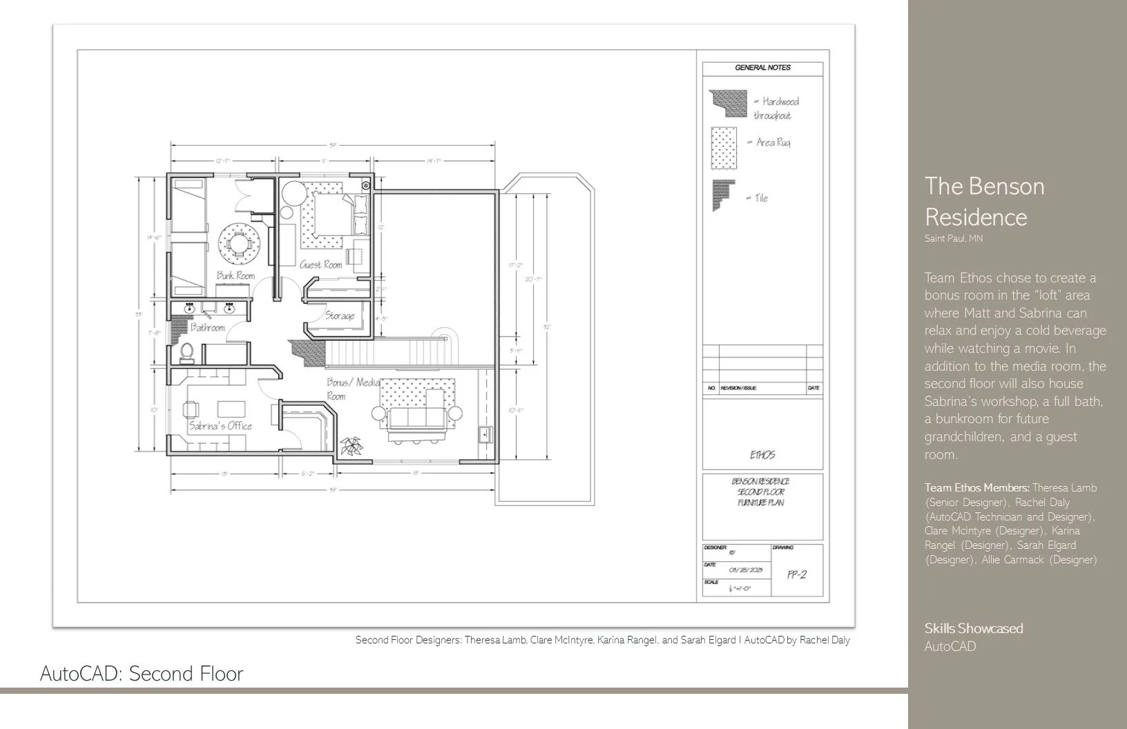
I received my Associates of Applied Science degree in interior design from Century College in May, 2023. Below is my student portfolio. Enjoy!
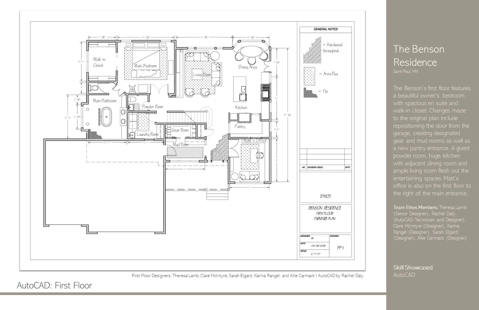
I received my Associates of Applied Science degree in interior design from Century College in May, 2023. Below is my student portfolio. Enjoy!

